
Instalación de agua sanitaria en vivienda

1. Agua sanitaria (ACS):
Las instalaciones de agua sanitaria son una parte esencial en cualquier vivienda. Su correcta planificación garantiza el confort, la seguridad y la eficiencia del hogar.
En una reforma integral, una instalación de fontanería bien diseñada evita fugas, problemas de presión y asegura la durabilidad de los materiales.
En Firme Constructora, nos ocupamos de que cada proyecto cumpla con las normativas técnicas y de calidad, priorizando la funcionalidad y la estética en cada espacio.

2. Tipos de tuberías y materiales
En la vivienda moderna se utilizan principalmente tres tipos de tuberías: multicapa, cobre y PVC. Cada una tiene características específicas según su uso:
Tuberías multicapa
Combinan aluminio y polietileno, ligeras, flexibles, resistentes a la corrosión y con una instalación sencilla.
Tuberías de cobre
Clásicas, duraderas y bacteriostáticas, ideales para agua caliente y gas, aunque más costosas y con mayor exigencia en la instalación.
Tuberías de PVC
Empleadas en desagües y saneamiento, por su resistencia, ligereza y bajo coste.
La elección del material depende del tipo de instalación: agua fría, agua caliente sanitaria (ACS), calefacción o gas (natural, propano, butano).
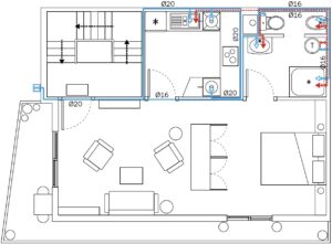
3. Diámetros recomendados de tuberías (cocina y baño)
Los diámetros de las tuberías determinan el caudal y la presión del agua. Un cálculo correcto evita ruidos, caídas de presión y sobrecargas en los desagües.
A continuación se muestran los valores recomendados para cada tipo de instalación:
Elemento / Aparato | Diámetro suministro (mm) | Diámetro desagüe (mm) |
Fregadero (pica) | 15–16 mm | 40 mm |
Grifo de cocina | 15–16 mm | — |
Lavavajillas | 16 mm | 40 mm (junto al fregadero) |
Lavadora | 16 mm | 40 mm |
Lavabo (baño) | 15–16 mm | 32–40 mm |
Ducha / Plato de ducha | 20 mm | 40 mm |
Bañera | 20–26 mm | 40 mm |
Inodoro (WC) | — | 100–110 mm |
Bidé | 15–16 mm | 40 mm |
Montante principal vivienda | 25–32 mm | 110 mm (bajante principal) |
Estos valores siguen las recomendaciones de la norma UNE 149201:2017 y las Normas Básicas de Instalaciones Interiores (NIA). El diámetro puede variar en función de la longitud del recorrido o la presión de entrada disponible.
4. Diseño de tomas y desagües sanitarios
Cada punto de agua en cocina y baño requiere una planificación precisa de su toma y desagüe:
Cocina: Fregadero, lavavajillas, lavadora, frigorífico con dispensador. Altura de tomas: 55–65 cm sobre el suelo. Desagües de 40 mm de diámetro con pendiente mínima del 2 %.
Baño: Lavabo, ducha, bañera, WC, bidé. Las pendientes de desagüe deben respetar entre 1 % y 3 % según la distancia al bajante. Los sifones evitan la emisión de olores y la ventilación de bajantes mantiene la presión interna equilibrada.
Las arquetas de registro se colocan en puntos de unión o cambio de dirección, permitiendo inspecciones y limpieza.

5. Llaves de paso: ubicación y función
Las llaves de paso son elementos fundamentales para el mantenimiento de la vivienda. Permiten cortar el suministro de agua en zonas concretas sin afectar al resto de la instalación.
– Llave general de vivienda: junto al contador o entrada principal.
– Llaves secundarias en cocina y baño: para grifos, lavadora, lavavajillas, lavabo y ducha.
– Materiales: latón cromado o acero inoxidable, con sistemas de cierre de fácil acceso.
En Firme Constructora recomendamos siempre instalar llaves independientes por estancia para facilitar futuras reparaciones o sustituciones.

6. Normativa de referencia
– Real Decreto 3/2023, de 10 de enero: Criterios técnico-sanitarios de la calidad del agua de consumo humano.
– Reglamento de Instalaciones Térmicas en los Edificios (RITE): Real Decreto 1027/2007.
– Norma UNE 149201:2017: Dimensionado de instalaciones de abastecimiento de agua para consumo humano dentro de los edificios.
– Normas Básicas para las Instalaciones Interiores de Suministro de Agua (NIA).
– Normativa de desagües y bajantes.
7. Buenas prácticas en reformas
– Diseñar el recorrido de tuberías antes de cerrar paredes o falsos techos.
– Separar canalizaciones de agua fría y caliente, evitando cruces y pérdidas térmicas.
– Mantener accesibles las llaves de paso y registros.
– Emplear materiales certificados (multicapa, cobre o PVC homologado).
– Documentar la instalación con planos y fichas de materiales.
– Realizar pruebas de estanqueidad y presión antes del cierre de la obra.

8. Conclusión
Las instalaciones de agua sanitaria en vivienda requieren precisión técnica, conocimiento de la normativa y materiales de calidad. En Firme Constructora planificamos y ejecutamos cada proyecto garantizando eficiencia, seguridad y durabilidad. Cada toma, desagüe y llave de paso se diseña según el uso del espacio, asegurando confort y fiabilidad a largo plazo.
¿Quieres saber cómo mejorar las instalaciones de tu vivienda? Contacta con Firme Constructora y te ayudaremos a planificar tu próxima reforma.
